- 3
- 108 m²
- 298 m²
- garages
Te renoveren woning met zuidwestgerichte tuin!
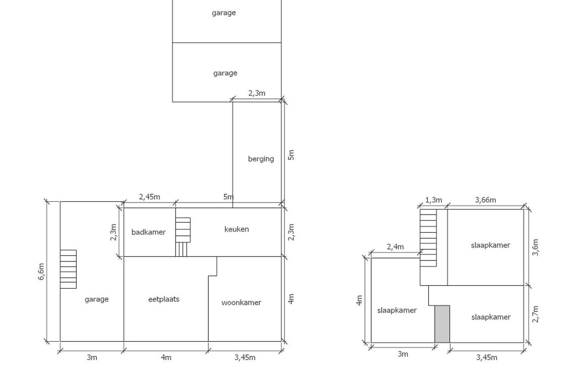
Deze compleet te renoveren woning biedt op het gelijkvloers een lichtrijke leefruimte, eetkamer, ruimte voor een keuken, en een badkamer uitgerust met douche, lavabo en toilet. Op de eerste verdieping bevinden zich drie comfortabele slaapkamers.
Via de keuken bereikt u het zonnige terras en de aangename tuin, ideaal georiënteerd op het zuidwesten.
Extra troeven zijn de drie garages, waarvan één inpandig. Deze inpandige garage biedt interessante uitbreidingsmogelijkheden en beschikt over een praktische opbergzolder.
De woning is deels voorzien van dubbele beglazing en verwarming op stookolie. De renovatieverplichting is van toepassing.
Goed gelegen in een rustige straat te Haaltert, op wandelafstand van het station, ... Ondanks de rustige ligging is deze woning toch makkelijk bereikbaar (gelegen aan verbindingswegen Aalst - Ninove - Brussel).
Voor meer info en/of een bezoek, contacteer ons via jonas@immotijl.be of 0477 17 44 20.
In detail
Financieel
- prijs
- € 125.000
- beschikbaarheid
- Vanaf akte
- onder btw stelsel
- nee
- kadastraal inkomen
- € 280
- opbrengsteigendom
- nee
Ligging
- ligging
- Woonkern
- omgeving school
- ja
- omgeving openbaar vervoer
- ja
- omgeving winkels
- ja
- omgeving autosnelweg
- ja
Comfort
- aansluiting riolering
- ja
- aansluiting water
- ja
- kabeltelevisie
- ja
Gebouw
- bewoonbare opp.
- 108,00 m²
- constructie
- Halfopen
Terrein
- perceel opp.
- 298,00 m²
- tuin
- 80,00 m²
Energie
- epc
- 978 kWh/m²
- epc unieke code
- 3642530-RES-3
- epc klasse
- F
- dubbel glas
- ja
- verwarming
- Stookolie
Technieken
- elektriciteit
- ja
- telefoonbekabeling
- ja
Garages / parking
- garages / parking
- 3
- binnenparking
- 2
- buitenparking
- 1
Indeling
- woonkamer
- 14 m²
- eetkamer
- 16 m²
- keuken
- 11 m²
- slaapkamers
- 3
- slaapkamer 1
- 13 m²
- slaapkamer 2
- 9 m²
- slaapkamer 3
- 13 m²
- terras
- ja
Certificaten
- asbestinventarisattest
- Ja
Stedenbouwkundige informatie & ruimtelijke ordening
- bestemming
- Woongebied
- bouwvergunning
- nee
- verkavelingsvergunning
- nee
- voorkooprecht
- nee
- vonnissen
- nee
- g-score
- A
- p-score
- A
- kadaster sectie
- B
- kadaster nummer
- 1798 H
- kadaster opp.
- 298
- renovatieverplichting
- JaDit pand kan onderheven zijn aan de renovatieverplichting die door de vlaamse overheid word opgelegd voor residentiele gebouwen. Voor meer informatie kan u de website van het Vlaams Energie- en Klimaatagentschap contacteren: https://www.vlaanderen.be/een-woning-kopen/renovatieverplichting-voor-residentiele-gebouwen
- bodemattest
- ja
















