- 3
- 1.243 m²
- garages
HOB met opslag, zwembad en poolhouse te Haaltert!
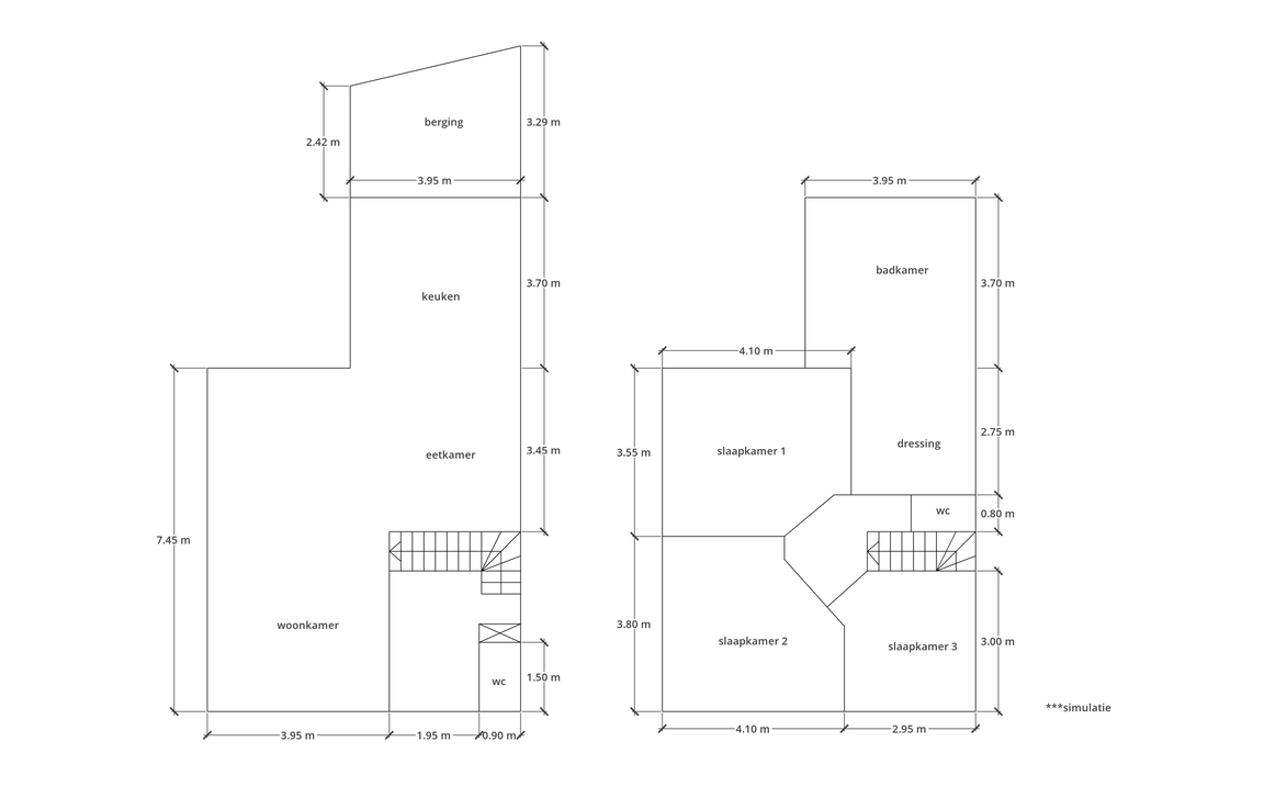
Deze halfopen bebouwing met een groot bijgebouw en zwembad is ideaal voor zelfstandigen, vrije beroepen of gezinnen die veel ruimte wensen. Op het gelijkvloers bevindt zich een inkomhal met apart toilet, een lichtrijke ruime woonkamer met eetplaats die aansluit op de keuken en de berging/wasruimte. Vanuit zowel de keuken als de berging heeft u directe toegang tot het prachtige terras met zwembad en zicht op de tuin, een ideale plek om volledig tot rust te komen.
Op de eerste verdieping bevinden zich drie slaapkamers, een dressing en een ruime badkamer uitgerust met ligbad, douche en een dubbel lavabomeubel. Verder is er nog een apart toilet aanwezig en een zolderruimte (enkel goed voor stockage).
Achteraan de tuin vindt u een indrukwekkende opslagruimte van ongeveer 220 vierkante meter, aangevuld met een aparte ruimte van 40 vierkante meter inclusief bureauruimte. Deze bijgebouwen zijn perfect geschikt als garage, stockage of atelier. De opslagruimte beschikt over een secitionaal poort en een aparte zij-ingang die toegang biedt tot het bureau.
Daarnaast beschikt de woning over een poolhouse met berging en zonnepanelen die bijdragen aan de energiezuinigheid. De woning is rustig gelegen maar toch centraal, op korte afstand van zowel het centrum van Haaltert als Aalst.
Bent u op zoek naar een eigendom met eindeloze mogelijkheden voor zelfstandigen, vrije beroepen of opslag, dan is deze woning absoluut een bezoek waard. Bekijk het virtuele bezoek op onze website en plan vandaag nog uw afspraak via aalst@immotijl.be of 053 42 46 99.
In detail
Financieel
- prijs
- € 665.000
- beschikbaarheid
- Vanaf akte
- onder btw stelsel
- nee
- kadastraal inkomen
- € 1.256
- opbrengsteigendom
- nee
Ligging
- ligging
- Centraal
- omgeving school
- ja
- omgeving openbaar vervoer
- ja
- omgeving winkels
- ja
- omgeving autosnelweg
- ja
- omgeving sportcentrum
- ja
Comfort
- zwembad
- ja
- aansluiting riolering
- ja
- aansluiting water
- ja
- kabeltelevisie
- ja
Gebouw
- constructie
- Halfopen
- gevelbreedte
- 7,50 m
- oriëntatie voorgevel
- Zuid
Terrein
- perceel opp.
- 1.243,00 m²
- breedte aan de straatkant
- 19,00 m
- tuin
- 385,00 m²
Energie
- epc
- 173 kWh/m²
- epc unieke code
- 20250704-0003640882-RES-1
- epc klasse
- B
- dubbel glas
- ja
- verwarming
- Stookolie
- type verwarming
- Individueel
- zonnepanelen
- ja,
Technieken
- elektriciteit
- ja
- telefoonbekabeling
- ja
Garages / parking
- garages / parking
- 1
- binnenparking
- 8
- buitenparking
- 5
Indeling
- bureau
- ja
- woonkamer
- 40 m²
- keuken
- 14 m², VS volledig geïnstalleerd
- slaapkamers
- 3
- slaapkamer 1
- 14 m²
- slaapkamer 2
- 14 m²
- slaapkamer 3
- 8 m²
- terras
- ja
- terras 1
- 150,00 m²
Stedenbouwkundige informatie & ruimtelijke ordening
- bestemming
- Woongebied
- bouwvergunning
- ja
- verkavelingsvergunning
- nee
- voorkooprecht
- nee
- vonnissen
- nee
- g-score
- D
- p-score
- D
- kadaster sectie
- B
- kadaster nummer
- 1402D2
- kadaster opp.
- 1243






























