Nieuw
Huis
Grote Baan 292, 9310 Herdersem
€ 449.000
- 4
- 355 m²
- garages
Ruime nieuwbouwwoning te Herdersem (Aalst)!
Ruime nieuwbouwwoning te Herdersem (Aalst)!
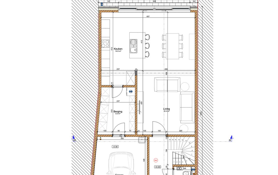
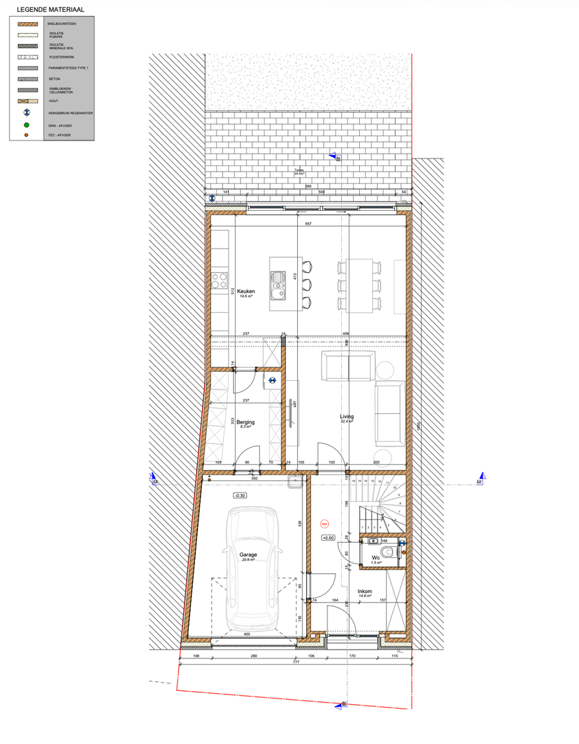
Deze gesloten bebouwing bestaat uit een inkom met apart toilet, een garage, een berging en een leefruimte met open keuken. Vanuit de leefruimte bereikt men het terras met een aangename tuin uitkijkend op de velden.
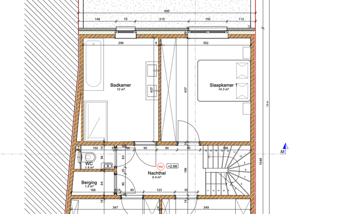
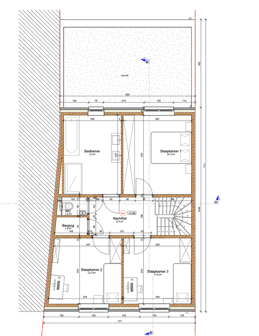
De eerste verdieping bestaat uit een nachthal, een apart toilet, een berging, een badkamer en 3 slaapkamers.
De tweede verdieping bestaat uit één master bedroom.
Energiezuinig wonen op een landelijke locatie te Herdersem!
De grond wordt verkocht onder het stelsel van registratierechten en de constructie onder het btw-stelsel.
Voor meer info en/of een gesprek i.v.m. deze woning, contacteer ons kantoor via steffen@immotijl.be of 053 42 46 99.
In detail
Financieel
- prijs
- € 449.000
- beschikbaarheid
- Bij oplevering
- onder btw stelsel
- ja
- opbrengsteigendom
- nee
Ligging
- omgeving school
- ja
- omgeving openbaar vervoer
- ja
- omgeving winkels
- ja
- omgeving autosnelweg
- ja
- omgeving sportcentrum
- ja
Comfort
- aansluiting riolering
- ja
- aansluiting water
- ja
- kabeltelevisie
- ja
Gebouw
- constructie
- Gesloten
- bouwjaar
- 2025
Terrein
- perceel opp.
- 355,00 m²
- tuin
- ja
Energie
- verwarming
- warmtepomp
- zonnepanelen
- ja,
- regenwaterput
- ja
Technieken
- elektriciteit
- ja
- telefoonbekabeling
- ja
Garages / parking
- garages / parking
- 1
- binnenparking
- ja
Indeling
- woonkamer
- 32 m²
- keuken
- 14 m², VS volledig geïnstalleerd
- slaapkamers
- 4
- slaapkamer 1
- 14 m²
- slaapkamer 2
- 12 m²
- slaapkamer 3
- 12 m²
- slaapkamer 4
- 40 m²
- terras
- ja
Stedenbouwkundige informatie & ruimtelijke ordening
- bestemming
- Woongebied
- bouwvergunning
- ja
- verkavelingsvergunning
- ja
- voorkooprecht
- nee
- vonnissen
- nee
- p-score
- A
- kadaster sectie
- B
- kadaster nummer
- 1028R
- kadaster opp.
- 3A54CA









