- 3
- 122 m²
- 232 m²
- garages
Halfopen woning met 3 kamers, garage en tuin in Herdersem!
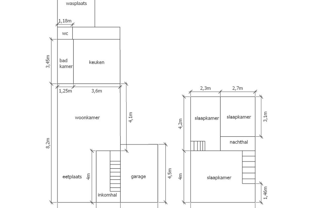
Deze halfopen woning is een ideale starterswoning en beschikt op het gelijkvloers over een inkomhal, een ruime woonkamer met eetplaats, een ingerichte keuken, badkamer (douche-in-bad, lavabo) en een apart toilet.
Op de eerste verdieping zijn er 3 volwaardige slaapkamers. De zolderverdieping, bereikbaar via een valluik, biedt extra uitbreidingsmogelijkheden. Bovendien is er een praktische kelder aanwezig.
Achteraan geniet u van een zonnig terras (ideale zuidwest oriëntatie) met aansluitend de mooi aangelegde tuin met tuinhuis en berging/wasplaats. Een extra troef is de garage, die eveneens directe toegang geeft tot de tuin. De woning beschikt reeds gedeeltelijk over hoogrendementsbeglazing, wat een mooie meerwaarde is, maar biedt verder nog volop mogelijkheden om naar eigen wensen te optimaliseren.
Gelegen in hartje Herdersem, op een steenworp van scholen, winkels en openbaar vervoer, en met een vlotte verbinding naar zowel het centrum van Aalst als Dendermonde. Contacteer ons voor meer informatie of een bezoek ter plaatse via june@immotijl.be of 0486 17 07 61.
In detail
Financieel
- prijs
- € 249.000
- beschikbaarheid
- In onderling overleg
- onder btw stelsel
- nee
- kadastraal inkomen
- € 441
- opbrengsteigendom
- nee
Ligging
- ligging
- Woonkern
- omgeving school
- ja
- omgeving openbaar vervoer
- ja
- omgeving winkels
- ja
- omgeving autosnelweg
- ja
- omgeving sportcentrum
- ja
Comfort
- rolluiken
- ja
- aansluiting riolering
- ja
- aansluiting gas
- ja
- aansluiting water
- ja
- kabeltelevisie
- ja
Gebouw
- bewoonbare opp.
- 122,00 m²
- constructie
- Halfopen
- bouwjaar
- 1951
- oriëntatie achtergevel
- Zuidwest
Terrein
- perceel opp.
- 232,00 m²
Energie
- epc
- 682 kWh/m²
- epc unieke code
- 3720164-RES-1
- epc klasse
- F
- dubbel glas
- ja
- elektriciteitskeuring
- ja, niet conform, 30 oktober 2025
- verwarming
- Gas
Technieken
- elektriciteit
- ja
- telefoonbekabeling
- ja
Garages / parking
- garages / parking
- 1
- binnenparking
- 1
Indeling
- kelder
- ja
- slaapkamers
- 3
- slaapkamer 1
- 16 m²
- slaapkamer 2
- 10 m²
- slaapkamer 3
- 8 m²
- woonkamer
- 32 m²
- keuken
- 12 m²
Stedenbouwkundige informatie & ruimtelijke ordening
- bestemming
- Woongebied
- bouwvergunning
- nee
- verkavelingsvergunning
- nee
- voorkooprecht
- nee
- vonnissen
- nee
- g-score
- B
- p-score
- B
- kadaster sectie
- A
- kadaster nummer
- 311 R7 P0000
- kadaster opp.
- 232
- renovatieverplichting
- JaDit pand kan onderheven zijn aan de renovatieverplichting die door de vlaamse overheid word opgelegd voor residentiele gebouwen. Voor meer informatie kan u de website van het Vlaams Energie- en Klimaatagentschap contacteren: https://www.vlaanderen.be/een-woning-kopen/renovatieverplichting-voor-residentiele-gebouwen
- bodemattest
- ja
















