Huis
Kloosterstraat 30, 9472 Iddergem
€ 374.000
- 4
- 210 m²
- 576 m²
- garages
Prachtige CASCO nieuwbouwwoning met garage en mooie tuin!
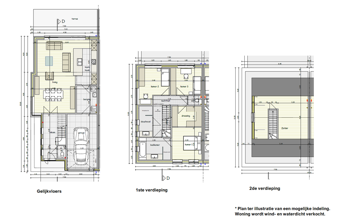
Deze volledig nieuwe woning wordt water- en winddicht afgeleverd. De indeling is als volgt: op het gelijkvloers is er een inkomhal met ruimte voor toilet, woonkamer met veel lichtinval door grote raampartijen, ruimte voor open keuken, berging/wasplaats en een inpandige garage.
Op de verdieping is er ruimte voorzien voor 3 slaapkamers, een dressing, 2 badkamers en een apart toilet. Verder is er nog een zolder aanwezig, waar mogelijk nog een extra kamer gemaakt kan worden.
Achteraan bevindt zich de diepe, zonnige tuin.
Deze woning is nog volledig naar eigen wens af te werken waardoor u van dit pand uw droomwoning kunt maken! Het EPB-certificaat is in opmaak (E-peil lager dan 20). Dit eigendom wordt verkocht onder het BTW stelsel.
Rustig gelegen in een doodlopende straat met vlotte verbindingen naar zowel Aalst als Ninove, en op korte afstand van scholen, winkels en openbaar vervoer. Voor meer info en/of een bezoek of voor het bekijken van de plannen en andere documenten, contacteer ons via tijl@immotijl.be of 0477 44 86 11.
Op de verdieping is er ruimte voorzien voor 3 slaapkamers, een dressing, 2 badkamers en een apart toilet. Verder is er nog een zolder aanwezig, waar mogelijk nog een extra kamer gemaakt kan worden.
Achteraan bevindt zich de diepe, zonnige tuin.
Deze woning is nog volledig naar eigen wens af te werken waardoor u van dit pand uw droomwoning kunt maken! Het EPB-certificaat is in opmaak (E-peil lager dan 20). Dit eigendom wordt verkocht onder het BTW stelsel.
Rustig gelegen in een doodlopende straat met vlotte verbindingen naar zowel Aalst als Ninove, en op korte afstand van scholen, winkels en openbaar vervoer. Voor meer info en/of een bezoek of voor het bekijken van de plannen en andere documenten, contacteer ons via tijl@immotijl.be of 0477 44 86 11.
In detail
Financieel
- prijs
- € 374.000
- beschikbaarheid
- Vanaf akte
- onder btw stelsel
- ja
- opbrengsteigendom
- nee
Ligging
- ligging
- Centraal
- omgeving school
- ja
- omgeving openbaar vervoer
- ja
- omgeving winkels
- ja
- omgeving autosnelweg
- ja
- omgeving sportcentrum
- ja
Gebouw
- bewoonbare opp.
- 210,00 m²
- constructie
- Halfopen
- bouwjaar
- 2025
- oriëntatie achtergevel
- Oost
Terrein
- perceel opp.
- 576,00 m²
- tuin
- 450,00 m²
Energie
- dubbel glas
- ja
Garages / parking
- garages / parking
- 1
- binnenparking
- 1
- buitenparking
- 2
Indeling
- bureau
- ja
- woonkamer
- 36 m²
- keuken
- 11 m²
- slaapkamers
- 4
- slaapkamer 1
- 12 m²
- slaapkamer 2
- 11 m²
- slaapkamer 3
- 10 m²
- slaapkamer 4
- 20 m²
Stedenbouwkundige informatie & ruimtelijke ordening
- bestemming
- Woonuitbreidingsgebied
- bouwvergunning
- ja
- verkavelingsvergunning
- ja
- voorkooprecht
- nee
- vonnissen
- nee
- overstromingsgevoeliggebied
- Niet gelegen in een overstromingsgevoelig gebied
- g-score
- A
- p-score
- A
- kadaster sectie
- A
- kadaster nummer
- 287 R
- kadaster opp.
- 576
- bodemattest
- ja












