- 4
- 161 m²
- 79 m²
Veelzijdige woning met potentieel op topligging!
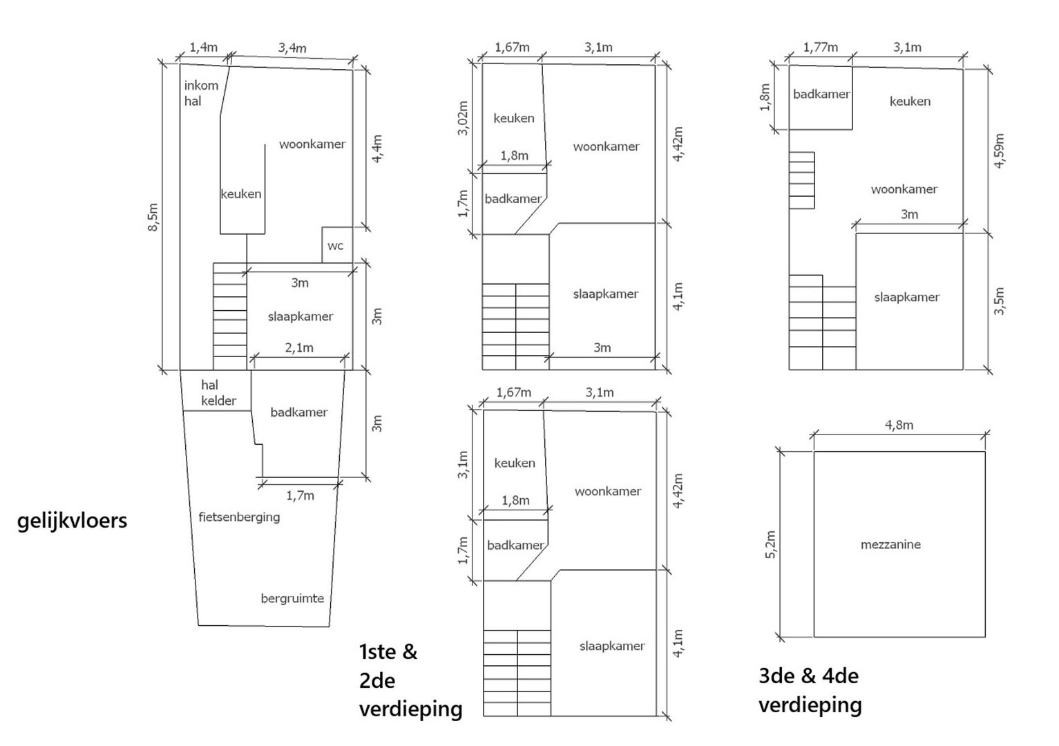
Op het gelijkvloers van deze woning bevindt zich een inkomhal, leefruimte met open keuken, een badkamer, een apart toilet en één slaapkamer.
Achteraan is er bovendien een handige berging/fietsenstalling voorzien en het pand beschikt eveneens over een ruime kelder.
De eerste verdieping en tweede verdieping beschikken elk over een volwaardige leefruimte met eigen keuken, badkamer en slaapkamer.
De bovenste verdieping biedt nog een bijkomende leefruimte, één slaapkamer, een keuken en een badkamer, aangevuld met een gezellige mezzanine.
Dankzij de flexibele indeling, het ruime woonvolume en de aanwezigheid van voorzieningen op elke verdieping, biedt deze woning tal van mogelijkheden!
Het gebouw is momenteel opgedeeld in 4 niet-vergunde wooneenheden (verhuurd).
De energieprestaties bedragen respectievelijk 503 kWh/m²/jaar, 275 kWh/m²/jaar, 258 kWh/m²/jaar en 1279 kWh/m²/jaar.
Ideaal gelegen vlakbij het station Simonis, in de nabijheid van talrijke winkels, scholen, en op korte afstand van het stadscentrum.
Voor meer info en/of een bezoek, contacteer Steven via steven@immotijl.be of 0485 52 55 29.
In detail
Financieel
- prijs
- € 360.000
- beschikbaarheid
- Vanaf akte
- onder btw stelsel
- nee
- kadastraal inkomen
- € 798
- opbrengsteigendom
- nee
Ligging
- ligging
- Stadskern
- omgeving school
- ja
- omgeving openbaar vervoer
- ja
- omgeving winkels
- ja
- omgeving autosnelweg
- ja
- omgeving sportcentrum
- ja
Comfort
- intercom
- ja
- aansluiting riolering
- ja
- aansluiting water
- ja
- kabeltelevisie
- ja
Gebouw
- bewoonbare opp.
- 161,00 m²
- constructie
- Gesloten
- verdieping(en)
- 3
Terrein
- perceel opp.
- 79,00 m²
Energie
- epc
- 1279 kWh/m²
- epc unieke code
- 748824-01-1
- epc klasse
- G
- dubbel glas
- ja
- elektriciteitskeuring
- ja, niet conform
- type verwarming
- Collectief
Technieken
- elektriciteit
- ja
- telefoonbekabeling
- ja
Indeling
- kelder
- ja
- slaapkamers
- 4
- slaapkamer 1
- 12 m²
- slaapkamer 2
- 12 m²
- slaapkamer 3
- 12 m²
- slaapkamer 4
- 9 m²
- keuken
- ja
Stedenbouwkundige informatie & ruimtelijke ordening
- bouwvergunning
- nee
- verkavelingsvergunning
- nee
- voorkooprecht
- nee
- vonnissen
- nee
- kadaster sectie
- B
- kadaster nummer
- 62 3GP
- kadaster opp.
- 79
- renovatieverplichting
- JaDit pand kan onderheven zijn aan de renovatieverplichting die door de vlaamse overheid word opgelegd voor residentiele gebouwen. Voor meer informatie kan u de website van het Vlaams Energie- en Klimaatagentschap contacteren: https://www.vlaanderen.be/een-woning-kopen/renovatieverplichting-voor-residentiele-gebouwen
- bodemattest
- ja















