- 3
- 148 m²
- 114 m²
- garages
Volledig vernieuwde woning met 3 kamers in hartje Lebbeke!
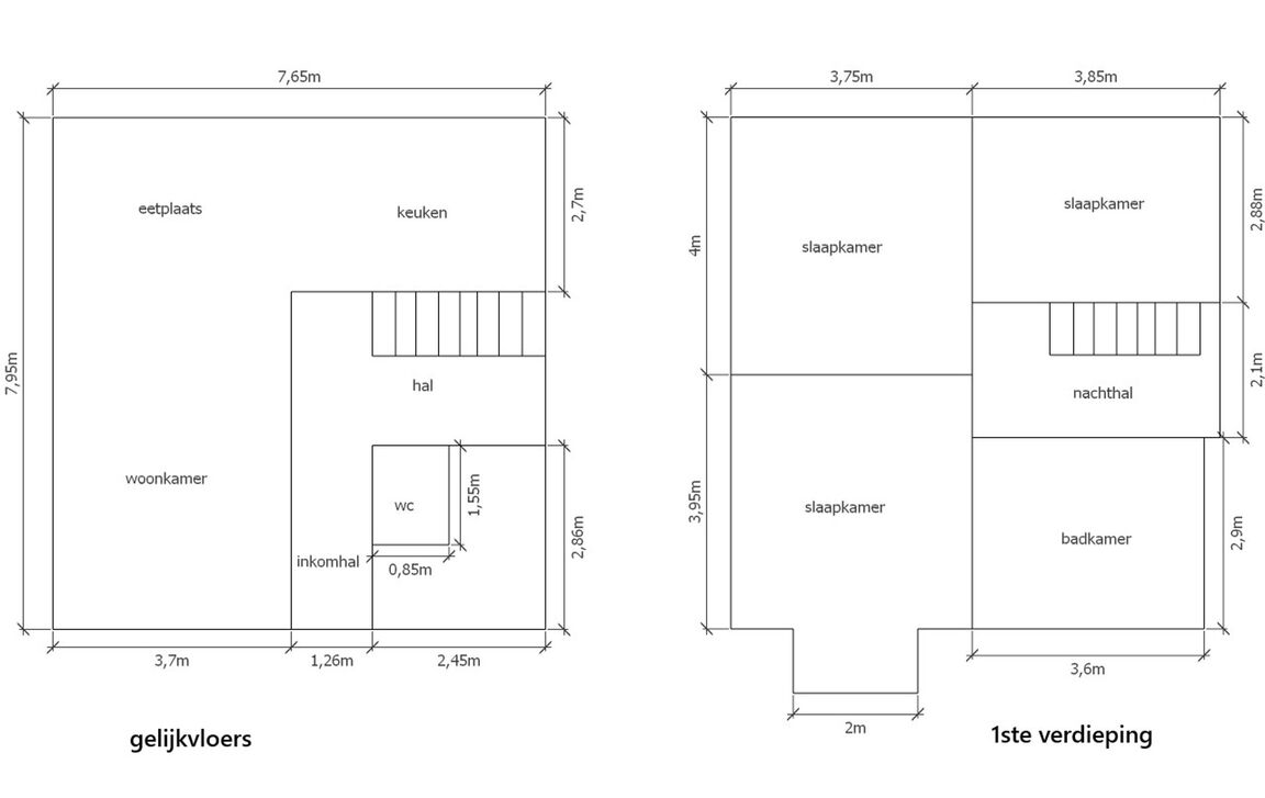
Deze volledig vernieuwde eigendom beschikt op het gelijkvloers over een inkomhal met gastentoilet, een lichtrijke woonkamer met eetplaats, een volledig ingerichte open keuken en een handige berging. Er is tevens een kelder aanwezig, ideaal als extra opbergruimte.
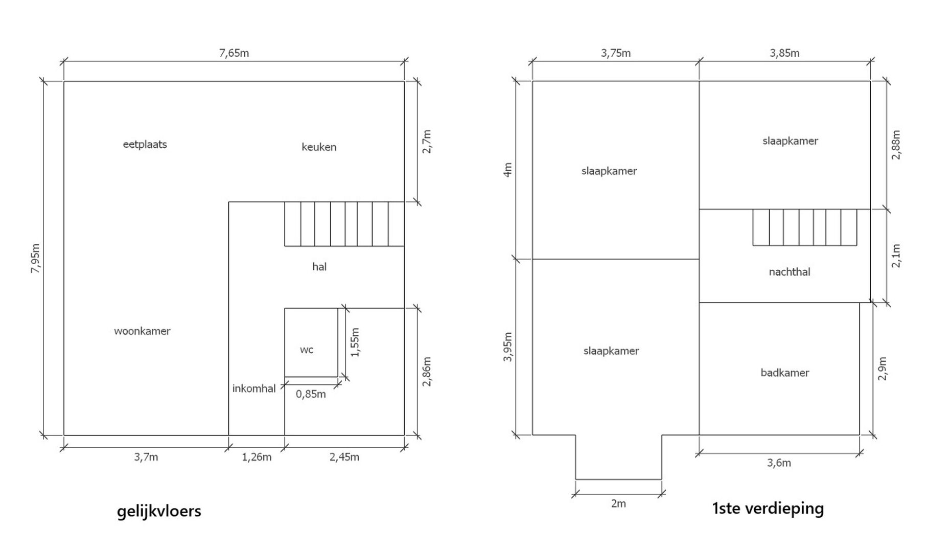
Op de eerste verdieping bevinden zich drie ruime slaapkamers en een moderne badkamer (inloopdouche, toilet en dubbele lavabo).
De leefruimte geeft uit op een onderhoudsvriendelijke terrastuin, perfect om in alle rust te genieten.
De woning is voorzien van alle hedendaags comfort; asbestveilig attest, elektriciteit conform AREI, gunstig EPC, hoogrendementsbeglazing, CV op aardgas met een condenserende ketel, ...
Een extra troef is de oprit vooraan waar men eenvoudig meerdere wagens kan parkeren.
Daarnaast geniet de woning van een bijzonder gunstige ligging, vlak bij belangrijke invalswegen die zorgen voor een vlotte verbinding naar Aalst en andere omliggende steden. Het centrum van Lebbeke bevindt zich op wandelafstand, waardoor winkels, scholen en openbaar vervoer steeds binnen handbereik zijn. De woning is opgenomen als vastgesteld bouwkundig erfgoed.
Voor meer informatie of een bezoek kan u Tijl contacteren via 0477 44 86 11.
In detail
Financieel
- prijs
- € 379.000
- beschikbaarheid
- Vanaf akte
- onder btw stelsel
- nee
- kadastraal inkomen
- € 518
- opbrengsteigendom
- nee
Ligging
- ligging
- Centraal
- omgeving school
- ja
- omgeving openbaar vervoer
- ja
- omgeving winkels
- ja
- omgeving autosnelweg
- ja
- omgeving sportcentrum
- ja
Comfort
- aansluiting riolering
- ja
- aansluiting gas
- ja
- aansluiting water
- ja
- kabeltelevisie
- ja
Gebouw
- bewoonbare opp.
- 148,00 m²
- constructie
- Gesloten
- oriëntatie achtergevel
- Oost
Terrein
- perceel opp.
- 114,00 m²
- tuin
- ja
Energie
- epc
- 135 kWh/m²
- epc unieke code
- 3621162-RES-1
- epc klasse
- B
- dubbel glas
- ja
- elektriciteitskeuring
- ja, conform
- verwarming
- Gas
Technieken
- elektriciteit
- ja
- telefoonbekabeling
- ja
Garages / parking
- buitenparking
- 2
Indeling
- kelder
- ja
- slaapkamers
- 3
- slaapkamer 1
- 15 m²
- slaapkamer 2
- 16 m²
- slaapkamer 3
- 11 m²
- terras
- ja
- woonkamer
- 29 m²
- keuken
- 12 m², Volledig geïnstalleerd
Certificaten
- asbestinventarisattest
- Ja
Stedenbouwkundige informatie & ruimtelijke ordening
- bestemming
- Woongebied met landelijk karakter
- bouwvergunning
- nee
- verkavelingsvergunning
- nee
- voorkooprecht
- nee
- vonnissen
- nee
- g-score
- A
- p-score
- A
- bestuursmaatregelen in het maatregelenregister
- nee
- kadaster sectie
- B
- kadaster nummer
- 137 C2
- kadaster opp.
- 114
- bodemattest
- ja














