- 2
- 105 m²
- 190 m²
- garages
Goed gelegen renovatiewoning met tuin en parkeergelegenheid!
Deze te renoveren woning biedt tal van mogelijkheden en is gunstig gelegen nabij het centrum van Moorsel/Aalst, met een vlotte aansluiting op de belangrijkste verbindingswegen.
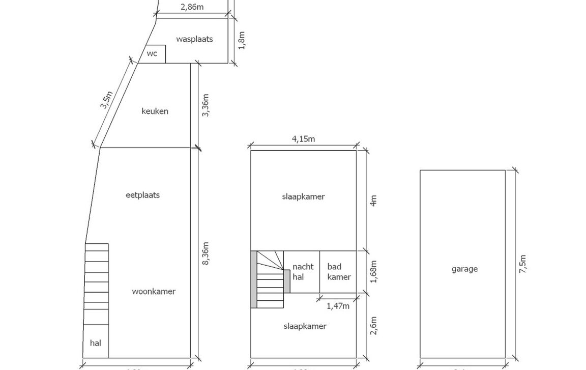
Het gelijkvloers omvat een inkomhal, een leefruimte met eetplaats, een keuken met aansluitende berging/wasplaats en een apart toilet. Vanuit de keuken is er toegang tot de zonnige tuin met terras.
Op de eerste verdieping bevinden zich twee ruime slaapkamers en een badkamer met lavabo, douche-bad combinatie en toilet. Via een valluik is de tweede verdieping bereikbaar, die bijkomende uitbreidingsmogelijkheden biedt.
Een extra troef is de ruime garage achteraan, bereikbaar via de achterzijde. Bovendien kan er ook voor de woning eenvoudig geparkeerd worden.
De woning beschikt deels over dubbele beglazing. Hoewel renovatie noodzakelijk is, vormt dit pand een uitstekende opportuniteit voor zowel investeerders als starters. De woning is momenteel verhuurd.
Openbaar vervoer bevindt zich op wandelafstand, net zoals lokale winkels, scholen en wandelroutes.
Voor meer info en/of een bezoek ter plaatse, contacteer Tijl via tijl@immotijl.be of 0477 44 86 11.
In detail
Financieel
- prijs
- € 215.000
- beschikbaarheid
- Mits inachtneming huurders
- onder btw stelsel
- nee
- kadastraal inkomen
- € 287
- opbrengsteigendom
- nee
Ligging
- ligging
- Woonkern
- omgeving school
- ja
- omgeving openbaar vervoer
- ja
- omgeving winkels
- ja
- omgeving autosnelweg
- ja
- omgeving sportcentrum
- ja
Comfort
- aansluiting riolering
- ja
- aansluiting water
- ja
- kabeltelevisie
- ja
Gebouw
- bewoonbare opp.
- 105,00 m²
- constructie
- Gesloten
Terrein
- perceel opp.
- 190,00 m²
- tuin
- 95,00 m²
Energie
- epc
- 584 kWh/m²
- epc unieke code
- 3661761-RES-1
- epc klasse
- F
- dubbel glas
- ja
- elektriciteitskeuring
- ja, niet conform
- verwarming
- Elektrisch
Technieken
- elektriciteit
- ja
- telefoonbekabeling
- ja
Garages / parking
- garages / parking
- 1
- buitenparking
- 2
Indeling
- woonkamer
- 33 m²
- keuken
- 10 m², Gedeeltelijk geïnstalleerd
- slaapkamers
- 2
- slaapkamer 1
- 16 m²
- slaapkamer 2
- 10 m²
- terras
- ja
Certificaten
- asbestinventarisattest
- Ja
Stedenbouwkundige informatie & ruimtelijke ordening
- bestemming
- Woongebied
- bouwvergunning
- nee
- verkavelingsvergunning
- nee
- voorkooprecht
- nee
- vonnissen
- nee
- g-score
- A
- p-score
- D
- kadaster sectie
- D
- kadaster nummer
- 634 L2/ 634 G2
- kadaster opp.
- 190
- renovatieverplichting
- JaDit pand kan onderheven zijn aan de renovatieverplichting die door de vlaamse overheid word opgelegd voor residentiele gebouwen. Voor meer informatie kan u de website van het Vlaams Energie- en Klimaatagentschap contacteren: https://www.vlaanderen.be/een-woning-kopen/renovatieverplichting-voor-residentiele-gebouwen
- bodemattest
- ja







