- 4
- 230 m²
- 517 m²
Te renoveren gezinswoning met 4 slaapkamers en zonnige tuin!
Deze te renoveren woning biedt heel wat potentieel voor wie op zoek is naar een project op een gunstige ligging.
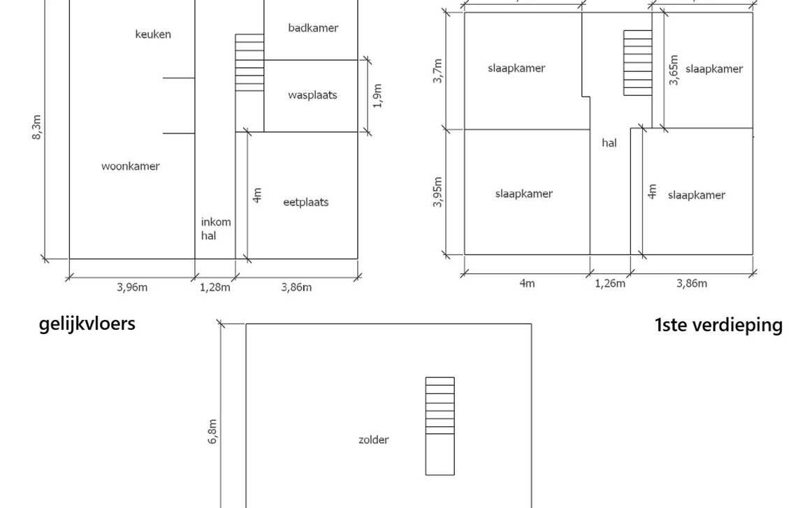
Op het gelijkvloers betreedt u de woning via de inkomhal. Verder beschikt de woning over een gezellige leefruimte met aansluitende keuken, een badkamer uitgerust met bad, toilet en lavabo, en een praktische wasplaats/berging.
De eerste verdieping omvat vier volwaardige slaapkamers. Via een vaste trap bereikt u de zolderverdieping, die momenteel niet is ingericht maar tal van mogelijkheden biedt voor het creëren van extra slaapkamers, een bureau of hobbyruimte.
Daarnaast beschikt de woning over een kelder, ideaal voor extra stockage. De achterliggende tuin geniet van een ideale zuidoriëntatie.
De woning beschikt deels over hoogrendementsbeglazing en wordt verwarmd met gaskachels.
Gelegen op wandelafstand van centrum Nieuwerkerken waar men winkels (o.a. Delhaize), basisschool, horeca, bibliotheek en nog veel meer kan terugvinden. Tevens op slechts een boogscheut van hartje Aalst gelegen met een makkelijke verbinding E40, dichtbij Haaltert en op slechts 1,5 km van station Ede (rechtstreekse verbinding Brussel). Voor meer informatie of een bezoek, contacteer June via june@immotijl.be of bel naar 0486 17 07 61.
In detail
Financieel
- prijs
- € 215.000
- beschikbaarheid
- Vanaf akte
- onder btw stelsel
- nee
- kadastraal inkomen
- € 623
- opbrengsteigendom
- nee
Ligging
- ligging
- Woonkern
- omgeving school
- ja
- omgeving openbaar vervoer
- ja
- omgeving winkels
- ja
- omgeving autosnelweg
- ja
- omgeving sportcentrum
- ja
Comfort
- aansluiting riolering
- ja
- aansluiting water
- ja
- kabeltelevisie
- ja
Gebouw
- bewoonbare opp.
- 230,00 m²
- constructie
- Gesloten
- bouwjaar
- 1962
- oriëntatie achtergevel
- Zuid
- oriëntatie voorgevel
- Noord
Terrein
- perceel opp.
- 517,00 m²
- tuin
- ja
Energie
- epc
- 643 kWh/m²
- epc unieke code
- 3851095-RES-1
- epc klasse
- F
- dubbel glas
- ja
- verwarming
- Gaskachels
Technieken
- elektriciteit
- ja
- telefoonbekabeling
- ja
Indeling
- kelder
- ja
- slaapkamers
- 4
- slaapkamer 1
- 13 m²
- slaapkamer 2
- 15 m²
- slaapkamer 3
- 11 m²
- slaapkamer 4
- 15 m²
- terras
- ja
- woonkamer
- 32 m²
- eetkamer
- 15 m²
- keuken
- ja
Downloads
Stedenbouwkundige informatie & ruimtelijke ordening
- bestemming
- Woongebied met landelijk karakter
- bouwvergunning
- nee
- verkavelingsvergunning
- nee
- voorkooprecht
- nee
- vonnissen
- nee
- g-score
- A
- p-score
- B
- bestuursmaatregelen in het maatregelenregister
- nee
- kadaster sectie
- C
- kadaster nummer
- 67 H
- renovatieverplichting
- JaDit pand kan onderheven zijn aan de renovatieverplichting die door de vlaamse overheid word opgelegd voor residentiele gebouwen. Voor meer informatie kan u de website van het Vlaams Energie- en Klimaatagentschap contacteren: https://www.vlaanderen.be/een-woning-kopen/renovatieverplichting-voor-residentiele-gebouwen
- bodemattest
- ja












