- 3
- 737 m²
- garages
Te renoveren gezinswoning met garage op ruim perceel!
Deze halfopen bebouwing biedt heel wat potentieel en combineert rustig wonen met een vlotte bereikbaarheid. Een ideale basis voor starters of als renovatieproject.
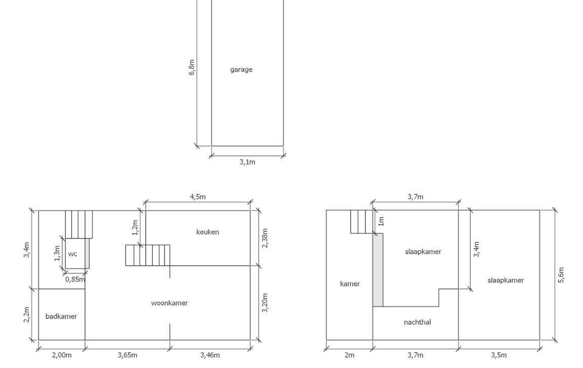
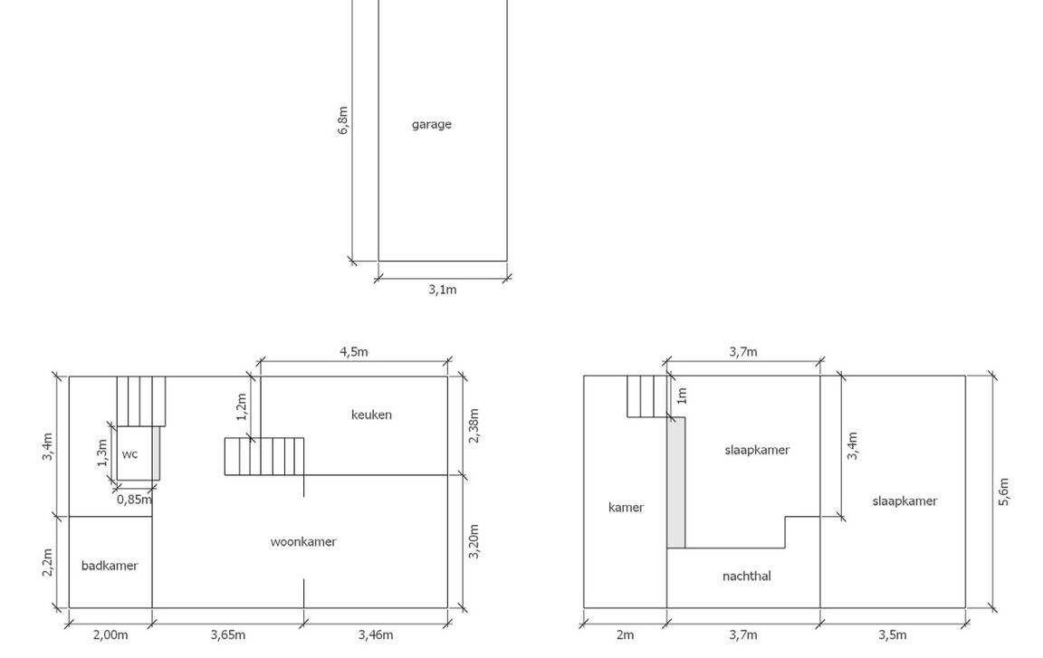
Op het gelijkvloers bevinden zich een gezellige leefruimte, een keuken en een badkamer met een aparte wc. Op de eerste verdieping zijn er twee volwaardige slaapkamers en een extra ruimte die perfect kan dienen als bureau of speelkamer. Daarnaast is er nog een zolder bereikbaar via een valluik. Bovendien beschikt de woning over een handige kelder, ideaal als extra bergruimte.
De oprit, samen met de aparte garage, zorgt voor voldoende parkeermogelijkheden. Achteraan geniet u van een mooie, diepe tuin met een praktische tuinberging.
Ook de ligging is een echte troef: landelijk en aangenaam gelegen in het pittoreske Outer (Ninove), met winkels, scholen en openbaar vervoer in de nabije omgeving en een vlotte verbinding naar de omliggende gemeenten.
De renovatieverplichting is van toepassing.
Voor meer info en/of een bezoek ter plaatse, contacteer ons via nadia@immotijl.be of 0486 79 73 19.
In detail
Financieel
- prijs
- € 225.000
- beschikbaarheid
- Vanaf akte
- onder btw stelsel
- nee
- kadastraal inkomen
- € 235
- opbrengsteigendom
- nee
Ligging
- ligging
- Rustig
- omgeving school
- ja
- omgeving openbaar vervoer
- ja
- omgeving winkels
- ja
- omgeving autosnelweg
- ja
Comfort
- aansluiting riolering
- ja
- aansluiting water
- ja
- kabeltelevisie
- ja
Gebouw
- constructie
- Halfopen
Terrein
- perceel opp.
- 737,00 m²
- tuin
- ja
Energie
- epc
- 741 kWh/m²
- epc unieke code
- 3759254-RES-1
- epc klasse
- F
- dubbel glas
- ja
Technieken
- elektriciteit
- ja
- telefoonbekabeling
- ja
Garages / parking
- garages / parking
- 1
- binnenparking
- 1
- buitenparking
- 3
Indeling
- kelder
- ja
- slaapkamers
- 3
- slaapkamer 1
- 19 m²
- slaapkamer 2
- 14 m²
- slaapkamer 3
- 11 m²
- terras
- ja
- woonkamer
- 22 m²
- keuken
- 10 m², Gedeeltelijk geïnstalleerd
Downloads
Stedenbouwkundige informatie & ruimtelijke ordening
- bestemming
- Woongebied met landelijk karakter
- bouwvergunning
- nee
- verkavelingsvergunning
- nee
- voorkooprecht
- nee
- vonnissen
- nee
- g-score
- A
- p-score
- C
- kadaster sectie
- A
- kadaster nummer
- 950 S
- kadaster opp.
- 737
- renovatieverplichting
- JaDit pand kan onderheven zijn aan de renovatieverplichting die door de vlaamse overheid word opgelegd voor residentiele gebouwen. Voor meer informatie kan u de website van het Vlaams Energie- en Klimaatagentschap contacteren: https://www.vlaanderen.be/een-woning-kopen/renovatieverplichting-voor-residentiele-gebouwen
- bodemattest
- ja














