- 3
- 164 m²
- 448 m²
- garages
Gezinswoning met tuin en garage in het Pajottenland!
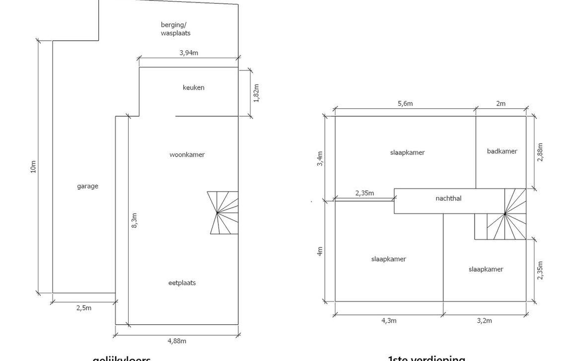
Deze woning biedt tal van mogelijkheden en beschikt op het gelijkvloers over een lichtrijke woonkamer met eetplaats, een keuken en een ruime inpandige garage met praktische berging.
Op de eerste verdieping bevinden zich twee ruime slaapkamers, een derde slaapkamer en een badkamer uitgerust met bad, toilet en lavabo.
Buiten geniet u van een aangename tuin met terras. De zolder, bereikbaar via een valluik, zorgt voor extra bergruimte.
De woning dient gemoderniseerd te worden, maar beschikt reeds over hoogrendementsbeglazing op het gelijkvloers (voorgevel) en centrale verwarming op aardgas. Extra troef: er geldt geen renovatieverplichting, wat dit pand bijzonder interessant maakt voor handige starters of investeerders.
Deze eigendom onderscheidt zich door zijn mooie potentieel en rustige, landelijke ligging in Borchtlombeek (Roosdaal). Winkels, scholen en openbaar vervoer bevinden zich in de nabije omgeving en er is een vlotte verbinding richting Brussel en Ninove.
Interesse? Contacteer ons voor meer informatie of een bezoek via steven@immotijl.be of 0485 52 55 29.
In detail
Financieel
- prijs
- € 245.000
- beschikbaarheid
- Vanaf akte
- onder btw stelsel
- nee
- kadastraal inkomen
- € 589
- opbrengsteigendom
- nee
Ligging
- ligging
- Landelijk
- omgeving school
- ja
- omgeving openbaar vervoer
- ja
- omgeving winkels
- ja
- omgeving sportcentrum
- ja
Comfort
- rolluiken
- ja
- aansluiting riolering
- ja
- aansluiting gas
- ja
- aansluiting water
- ja
- kabeltelevisie
- ja
Gebouw
- bewoonbare opp.
- 164,00 m²
- constructie
- Gesloten
- bouwjaar
- 1968
Terrein
- perceel opp.
- 448,00 m²
- tuin
- 295,00 m²
Energie
- epc
- 369 kWh/m²
- epc unieke code
- 3803626-RES-1
- epc klasse
- D
- dubbel glas
- ja
- verwarming
- Gas
Technieken
- elektriciteit
- ja
- telefoonbekabeling
- ja
Garages / parking
- garages / parking
- 1
- binnenparking
- 1
- buitenparking
- 1
Indeling
- woonkamer
- 41 m²
- keuken
- 7 m², Gedeeltelijk geïnstalleerd
- slaapkamers
- 3
- slaapkamer 1
- 19 m²
- slaapkamer 2
- 17 m²
- slaapkamer 3
- 8 m²
- terras
- ja
Downloads
Stedenbouwkundige informatie & ruimtelijke ordening
- bestemming
- Woongebied met landelijk karakter
- bouwvergunning
- ja
- verkavelingsvergunning
- nee
- voorkooprecht
- nee
- vonnissen
- nee
- g-score
- A
- p-score
- B
- kadaster sectie
- C
- kadaster nummer
- 303 M
- kadaster opp.
- 448
- bodemattest
- ja















