- 4
- 166 m²
- 270 m²
- garages
Halfopen bebouwing met garage in rustige buurt van Ternat!
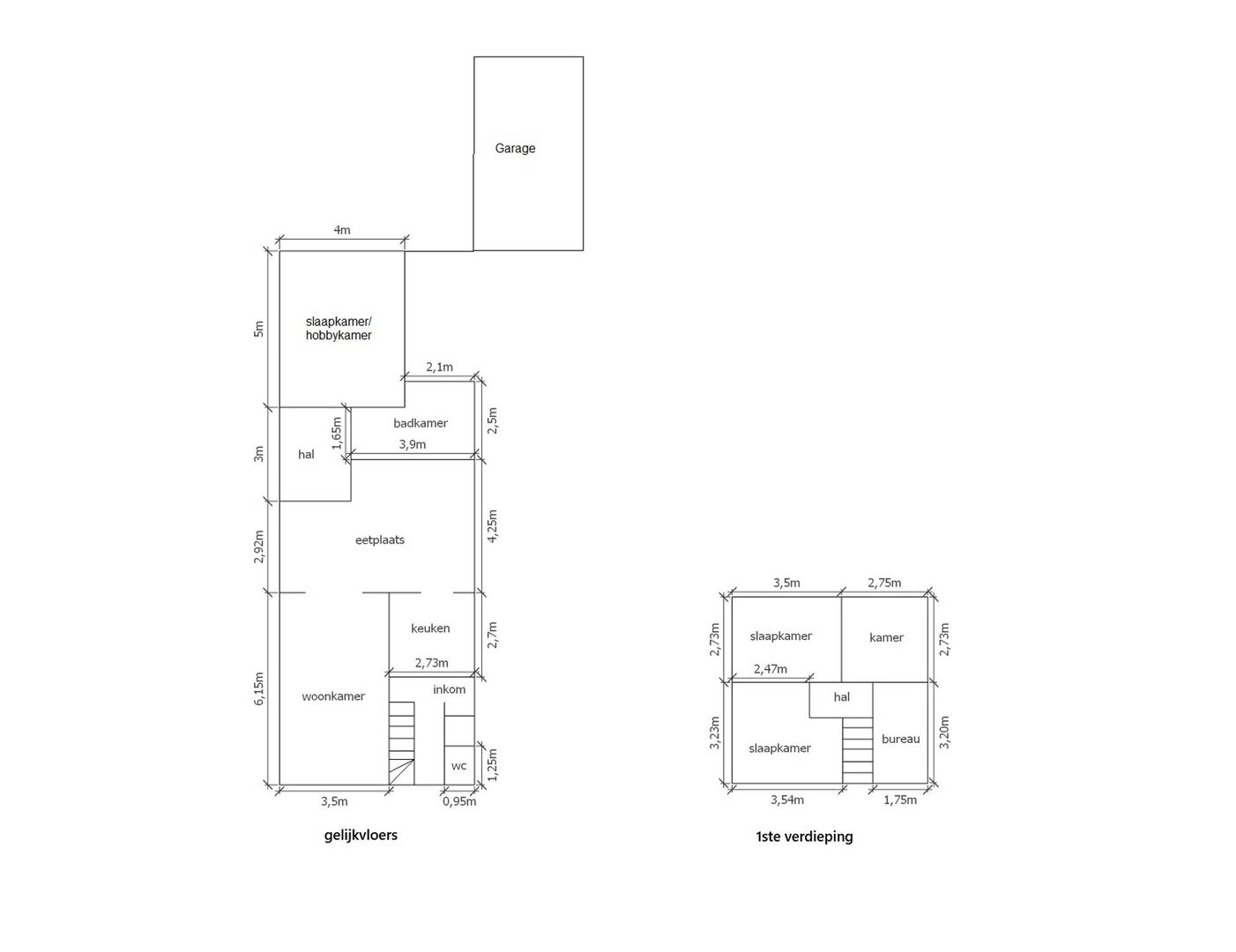
Deze gezinswoning beschikt op het gelijkvloers over een inkomhal met gastentoilet, een gezellige woonkamer met eetplaats, een recent vernieuwde, ingerichte keuken, een badkamer (douche-in-bad, lavabo, toilet en aansluiting wasmachine) en een hobbykamer (ideaal als extra slaapkamer, speelkamer, praktijkruimte, ....).
Op de eerste verdieping bevindt zich de masterbedroom, 2 kleinere (slaap)kamers en een bureau. Een praktische zolder (bereikbaar via een valluik) biedt extra mogelijkheden op vlak van uitbreiding of stockage. Er is tevens een handige kelder, ideaal of als opbergruimte.
Achteraan geniet je van een gezellige, onderhoudsvriendelijke terrastuin met deels overdekt terras – de ideale setting om elk moment van de dag in alle comfort buiten te ontspannen.
Een extra troef is de ruime oprit (plaats voor meerdere wagens) met aansluitend de garage met automatische poort.
Gelegen in een kindvriendelijke woonwijk in Ternat, op wandelafstand van het centrum met scholen, winkels, bakker, apotheek en andere voorzieningen. De ligging garandeert bovendien een vlotte verbinding met het op- en afrittencomplex richting Gent en Brussel. Voor meer informatie of een bezoek ter plaatse, contacteer ons via tijl@immotijl.be of 0477 44 86 11.
In detail
Financieel
- prijs
- € 339.000
- beschikbaarheid
- Vanaf akte
- onder btw stelsel
- nee
- kadastraal inkomen
- € 795
- opbrengsteigendom
- nee
Ligging
- ligging
- Residentiële wijk
- omgeving school
- ja
- omgeving openbaar vervoer
- ja
- omgeving winkels
- ja
- omgeving autosnelweg
- ja
Comfort
- rolluiken
- ja
- aansluiting riolering
- ja
- aansluiting water
- ja
- kabeltelevisie
- ja
Gebouw
- bewoonbare opp.
- 166,00 m²
- constructie
- Halfopen
- bouwjaar
- 1961
Terrein
- perceel opp.
- 270,00 m²
- tuin
- ja
Energie
- epc
- 823 kWh/m²
- epc unieke code
- 0003430874-RES-1
- epc klasse
- F
- dubbel glas
- ja
- elektriciteitskeuring
- ja, niet conform
- verwarming
- Pellets
Technieken
- elektriciteit
- ja
- telefoonbekabeling
- ja
Garages / parking
- garages / parking
- 1
- binnenparking
- 1
- buitenparking
- 2
Indeling
- kelder
- ja
- slaapkamers
- 4
- slaapkamer 1
- 9 m²
- slaapkamer 2
- 10 m²
- slaapkamer 3
- 8 m²
- slaapkamer 4
- 20 m²
- terras
- ja
- bureau
- 5 m²
- woonkamer
- 21 m²
- eetkamer
- 18 m²
- keuken
- 7 m², Volledig geïnstalleerd
Downloads
Stedenbouwkundige informatie & ruimtelijke ordening
- bestemming
- Woongebied
- bouwvergunning
- nee
- verkavelingsvergunning
- nee
- voorkooprecht
- nee
- vonnissen
- nee
- g-score
- A
- p-score
- A
- kadaster sectie
- C
- kadaster nummer
- 124 F4
- kadaster opp.
- 270
- renovatieverplichting
- JaDit pand kan onderheven zijn aan de renovatieverplichting die door de vlaamse overheid word opgelegd voor residentiele gebouwen. Voor meer informatie kan u de website van het Vlaams Energie- en Klimaatagentschap contacteren: https://www.vlaanderen.be/een-woning-kopen/renovatieverplichting-voor-residentiele-gebouwen
- bodemattest
- ja