Nieuw
Villa
Pontweg 42, 9300 Aalst
€ 850.000
- 5
- 281 m²
- 2.651 m²
- garages
Prachtige, authentieke vierkantshoeve te Herdersem - Aalst!
Prachtige, authentieke vierkantshoeve te Herdersem - Aalst!
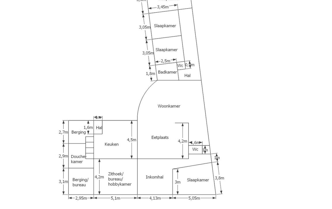
Deze unieke eigendom beschikt op het gelijkvloers over een indrukwekkende inkomhal met gastentoilet, een ruime woonkamer met eetplaats, ingerichte keuken (incl. koelkast, vaatwas, ...), 5 ruime slaapkamers (die tevens ingericht kunnen worden als bureau/praktijkruime/hobbykamer/...) en een luxueus ingerichte badkamer (hoekbad en lavabomeubel) met een apart toilet. Verder is er nog een berging, wasplaats en douchekamer terug te vinden. Dit woongedeelte bevat een zolder (toegankelijk via vaste trap) van hetzelfde formaat waardoor dit pand ook ideaal zou zijn als bed and breakfast, kangoeroewoning, ...
De keuken en woonkamer geven uit op de magnifieke binnenkoer met de daarbijhorende bijgebouwen (een ruime opslagruimte is aanwezig, grote garage die plaats biedt aan meerdere wagens). Deze ruimtes kunnen gebruikt worden voor verschillende doeleinden!
Achteraan is er nog een mooi, zonnig perceel tuin gelegen!
Deze hoeve werd zo'n 30 jaar geleden volledig gerenoveerd met het behoud van de knappe, authentieke elementen die men overal in en rondom de woning kan terugvinden. Neem gerust al eens een kijkje binnenin via onze virtuele rondleiding: my.matterport.com
Goed gelegen op een perceel van meer dan 26 are te Herdersem, op slechts een boogscheut van centrum Aalst! Ideaal voor wie houdt van groen en rust, paardenliefhebbers, zelfstandigen, enz. Voor meer info en/of een bezoek ter plaatse, contacteer ons via tijl@immotijl.be of 0477/44 86 11.
Deze unieke eigendom beschikt op het gelijkvloers over een indrukwekkende inkomhal met gastentoilet, een ruime woonkamer met eetplaats, ingerichte keuken (incl. koelkast, vaatwas, ...), 5 ruime slaapkamers (die tevens ingericht kunnen worden als bureau/praktijkruime/hobbykamer/...) en een luxueus ingerichte badkamer (hoekbad en lavabomeubel) met een apart toilet. Verder is er nog een berging, wasplaats en douchekamer terug te vinden. Dit woongedeelte bevat een zolder (toegankelijk via vaste trap) van hetzelfde formaat waardoor dit pand ook ideaal zou zijn als bed and breakfast, kangoeroewoning, ...
De keuken en woonkamer geven uit op de magnifieke binnenkoer met de daarbijhorende bijgebouwen (een ruime opslagruimte is aanwezig, grote garage die plaats biedt aan meerdere wagens). Deze ruimtes kunnen gebruikt worden voor verschillende doeleinden!
Achteraan is er nog een mooi, zonnig perceel tuin gelegen!
Deze hoeve werd zo'n 30 jaar geleden volledig gerenoveerd met het behoud van de knappe, authentieke elementen die men overal in en rondom de woning kan terugvinden. Neem gerust al eens een kijkje binnenin via onze virtuele rondleiding: my.matterport.com
Goed gelegen op een perceel van meer dan 26 are te Herdersem, op slechts een boogscheut van centrum Aalst! Ideaal voor wie houdt van groen en rust, paardenliefhebbers, zelfstandigen, enz. Voor meer info en/of een bezoek ter plaatse, contacteer ons via tijl@immotijl.be of 0477/44 86 11.
In detail
Financieel
- prijs
- € 850.000
- beschikbaarheid
- Vanaf akte
- onder btw stelsel
- nee
- kadastraal inkomen
- € 1.802
- opbrengsteigendom
- nee
Ligging
- ligging
- Woonkern
- omgeving school
- ja
- omgeving openbaar vervoer
- ja
- omgeving winkels
- ja
- omgeving autosnelweg
- ja
Comfort
- intercom
- ja
- rolluiken
- ja
- aansluiting riolering
- ja
- aansluiting water
- ja
- kabeltelevisie
- ja
Gebouw
- bewoonbare opp.
- 281,00 m²
- constructie
- Open
- renovatiejaar
- 1987
Terrein
- perceel opp.
- 2.651,00 m²
- tuin
- 1.200,00 m²
Energie
- epc
- 416 kWh/m²
- epc unieke code
- 0002686681-RES-1
- epc klasse
- E
- dubbel glas
- ja
- verwarming
- Stookolie
- type verwarming
- Individueel
Technieken
- elektriciteit
- ja
- telefoonbekabeling
- ja
Garages / parking
- garages / parking
- 3
- binnenparking
- ja
- buitenparking
- 10
Indeling
- kelder
- ja
- slaapkamers
- 5
- slaapkamer 1
- 18 m²
- slaapkamer 2
- 18 m²
- slaapkamer 3
- 11 m²
- slaapkamer 4
- 11 m²
- slaapkamer 5
- 21 m²
- terras
- ja
- bureau
- ja
- woonkamer
- 72 m²
- keuken
- 21 m², Volledig geïnstalleerd
Downloads
Stedenbouwkundige informatie & ruimtelijke ordening
- bestemming
- Woongebied met landelijk karakter
- bouwvergunning
- ja
- verkavelingsvergunning
- nee
- voorkooprecht
- ja
- vonnissen
- nee
- g-score
- A
- p-score
- B
- kadaster sectie
- B
- kadaster nummer
- 649 N, 650 Y
- kadaster opp.
- 2651
- renovatieverplichting
- JaDit pand kan onderheven zijn aan de renovatieverplichting die door de vlaamse overheid word opgelegd voor residentiele gebouwen. Voor meer informatie kan u de website van het Vlaams Energie- en Klimaatagentschap contacteren: https://www.vlaanderen.be/een-woning-kopen/renovatieverplichting-voor-residentiele-gebouwen

























