- 3
- 238 m²
- 3.061 m²
- garages
Mooie villa met ruime tuin op rustige ligging te Baardegem!
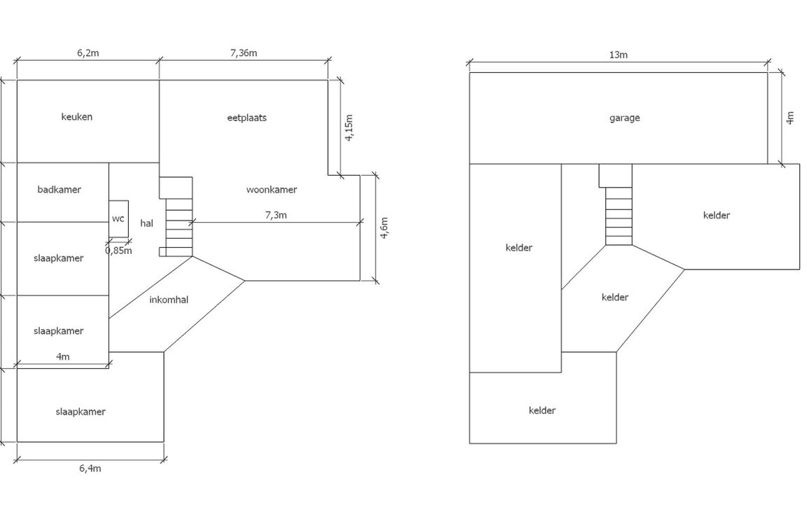
Deze ruime en goed onderhouden villa verwelkomt u met een inkomhal met gastentoilet. De lichtrijke woonkamer met gezellige schouw sluit mooi aan op de ruime keuken met zicht op de tuin. Boven vindt u drie volwaardige slaapkamers en een badkamer met bad, douche en dubbele lavabo.
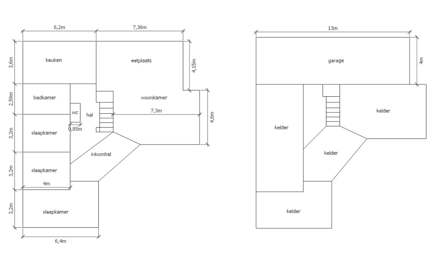
De woning staat op een zeer ruim perceel van meer dan 30 are, waardoor u geniet van veel privacy en ruimte. Achteraan ligt een diepe, zonnige zuidgerichte tuin met terras waar u volop kan ontspannen. Het achterste deel van de tuin is bovendien ideaal om dieren te houden. De brede oprit en inpandige garage zorgen bovendien voor extra comfort.
De woning is volledig onderkelderd. De kelder biedt de mogelijkheid om een wasplaats, hobbyruimte en/of fitnessruimte in te richten, zodat u deze ruimte volledig kan benutten.
Verder beschikt de villa over een conforme elektrische installatie en dubbele beglazing. Via de virtuele rondleiding kan u alvast een eerste indruk krijgen!
De ligging in het rustige Baardegem is een absolute meerwaarde. U woont er in een charmant en groen dorp, waar rust en privacy centraal staan, maar toch met een vlotte verbinding naar Aalst en de omliggende gemeenten. Winkels, scholen en openbaar vervoer zijn makkelijk bereikbaar, waardoor deze locatie zowel voor gezinnen als voor wie rust zoekt ideaal is.
Voor meer informatie of het plannen van een bezichtiging, contacteer Tijl op 0477 44 86 11.
In detail
Financieel
- prijs
- € 595.000
- beschikbaarheid
- Vanaf akte
- onder btw stelsel
- nee
- kadastraal inkomen
- € 1.360
- opbrengsteigendom
- nee
Ligging
- ligging
- Rustig
- omgeving school
- ja
- omgeving openbaar vervoer
- ja
- omgeving winkels
- ja
- omgeving sportcentrum
- ja
Comfort
- rolluiken
- ja
- aansluiting riolering
- ja
- aansluiting water
- ja
- kabeltelevisie
- ja
Gebouw
- bewoonbare opp.
- 238,00 m²
- constructie
- Open
- bouwjaar
- 1986
- oriëntatie achtergevel
- Zuid
Terrein
- perceel opp.
- 3.061,00 m²
- tuin
- 2.000,00 m²
Energie
- epc
- 406 kWh/m²
- epc unieke code
- 3693347-RES-1
- epc klasse
- E
- dubbel glas
- ja
- elektriciteitskeuring
- ja, conform
- verwarming
- Stookolie
Technieken
- elektriciteit
- ja
- telefoonbekabeling
- ja
Garages / parking
- garages / parking
- 1
- binnenparking
- 3
- buitenparking
- 5
Indeling
- kelder
- ja
- slaapkamers
- 3
- slaapkamer 1
- 23 m²
- slaapkamer 2
- 12 m²
- slaapkamer 3
- 12 m²
- terras
- ja
- woonkamer
- 60 m²
- keuken
- 22 m², Geïnstalleerd
Certificaten
- asbestinventarisattest
- Ja
Downloads
Stedenbouwkundige informatie & ruimtelijke ordening
- bouwvergunning
- ja
- verkavelingsvergunning
- nee
- voorkooprecht
- ja
- vonnissen
- nee
- g-score
- A
- p-score
- D
- kadaster sectie
- C
- kadaster nummer
- 14 K
- kadaster opp.
- 3061
- renovatieverplichting
- JaDit pand kan onderheven zijn aan de renovatieverplichting die door de vlaamse overheid word opgelegd voor residentiele gebouwen. Voor meer informatie kan u de website van het Vlaams Energie- en Klimaatagentschap contacteren: https://www.vlaanderen.be/een-woning-kopen/renovatieverplichting-voor-residentiele-gebouwen
- bodemattest
- ja





















