Villa
Hector Plancquaertstraat 12, 9450 Haaltert
€ 719.000
- 4
- 274 m²
- 1.045 m²
- garages
Prachtige, authentieke villa met ruime, aangelegde tuin!
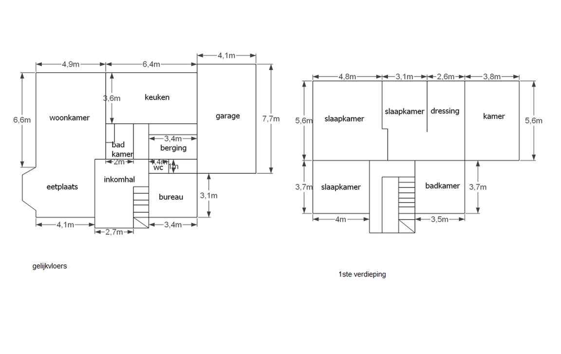
Deze unieke en luxueuze eigendom beschikt op het gelijkvloers over een indrukwekkende inkomhal met gastentoilet, een ruime en lichtrijke woonkamer met eetplaats (voorzien van een prachtige parketvloer), een hoogkwalitatieve keuken met eiland (incl. kookplaat met afzuiging Siemens, dubbele spoelbak, combi-oven, oven, vaatwas), een bureau, handige berging (uitgerust met een wijnfrigo en diepvries) en een douchekamer (douche en lavabo). Een extra troef is de ruime, inpandige garage (met automatische poort en extra opbergruimte). Ook op de oprit voor de garage is er nog parkeerplaats voorzien.
Op de 1ste verdieping vindt men de badkamer (ligbad, dubbele lavabo en toilet) en 4 ruime slaapkamers (waarvan één met dressing). Er is tevens een handige opbergzolder (luik) aanwezig.
De woonkamer geeft uit op het mooi en breed terras incl. jacuzzi, met aansluitend de prachtige, aangelegde tuin (ideale west oriëntatie). Daarnaast is er een tuinberging en een extra terras aan de zijkant van de woning, waardoor u de hele dag van de zon kunt genieten.
Deze vrijstaande woning werd afgewerkt met hoogkwalitatieve materialen en is voorzien van alle hedendaags comfort: hoogrendementsbeglazing, centrale verwarming op gas, warmtepomp lucht/lucht, gunstig EPC, ... Verken de woning via onze video op YouTube.
Deze karaktervolle villa is goed gelegen in een doodlopende straat, op slechts een boogscheut van het centrum van Ninove. Voor meer info en/of een bezoek, contacteer Tijl via 0477 44 86 11.
Op de 1ste verdieping vindt men de badkamer (ligbad, dubbele lavabo en toilet) en 4 ruime slaapkamers (waarvan één met dressing). Er is tevens een handige opbergzolder (luik) aanwezig.
De woonkamer geeft uit op het mooi en breed terras incl. jacuzzi, met aansluitend de prachtige, aangelegde tuin (ideale west oriëntatie). Daarnaast is er een tuinberging en een extra terras aan de zijkant van de woning, waardoor u de hele dag van de zon kunt genieten.
Deze vrijstaande woning werd afgewerkt met hoogkwalitatieve materialen en is voorzien van alle hedendaags comfort: hoogrendementsbeglazing, centrale verwarming op gas, warmtepomp lucht/lucht, gunstig EPC, ... Verken de woning via onze video op YouTube.
Deze karaktervolle villa is goed gelegen in een doodlopende straat, op slechts een boogscheut van het centrum van Ninove. Voor meer info en/of een bezoek, contacteer Tijl via 0477 44 86 11.
In detail
Financieel
- prijs
- € 719.000
- beschikbaarheid
- Vanaf akte
- onder btw stelsel
- nee
- kadastraal inkomen
- € 1.308
- opbrengsteigendom
- nee
Ligging
- ligging
- Rustig
- omgeving school
- ja
- omgeving openbaar vervoer
- ja
- omgeving winkels
- ja
- omgeving autosnelweg
- ja
Comfort
- intercom
- ja
- air conditioning
- ja
- aansluiting riolering
- ja
- aansluiting gas
- ja
- aansluiting water
- ja
- kabeltelevisie
- ja
Gebouw
- bewoonbare opp.
- 274,00 m²
- constructie
- Open
- bouwjaar
- 2001
- oriëntatie achtergevel
- West
Terrein
- perceel opp.
- 1.045,00 m²
- tuin
- 650,00 m²
Energie
- epc
- 189 kWh/m²
- epc unieke code
- 0003306077-RES-1
- epc klasse
- B
- dubbel glas
- ja
- verwarming
- Gas
- type verwarming
- Individueel
Technieken
- elektriciteit
- ja
- telefoonbekabeling
- ja
Garages / parking
- garages / parking
- 1
- binnenparking
- 1
- buitenparking
- 2
Indeling
- bureau
- 10 m²
- woonkamer
- 44 m²
- keuken
- 17 m², Volledig geïnstalleerd
- slaapkamers
- 4
- slaapkamer 1
- 30 m²
- slaapkamer 2
- 14 m²
- slaapkamer 3
- 26 m²
- slaapkamer 4
- 21 m²
- terras
- ja
Stedenbouwkundige informatie & ruimtelijke ordening
- bestemming
- Woongebied met landelijk karakter
- bouwvergunning
- ja
- verkavelingsvergunning
- ja
- voorkooprecht
- nee
- vonnissen
- nee
- overstromingsgevoeliggebied
- Niet gelegen in een overstromingsgevoelig gebied
- g-score
- A
- p-score
- A
- kadaster sectie
- A
- kadaster nummer
- 1063K
- kadaster opp.
- 1045
- bodemattest
- ja





























