- 4
- 365 m²
- 1.001 m²
- garages
Energiezuinige villa met 4 slaapkamers, garage en tuin!
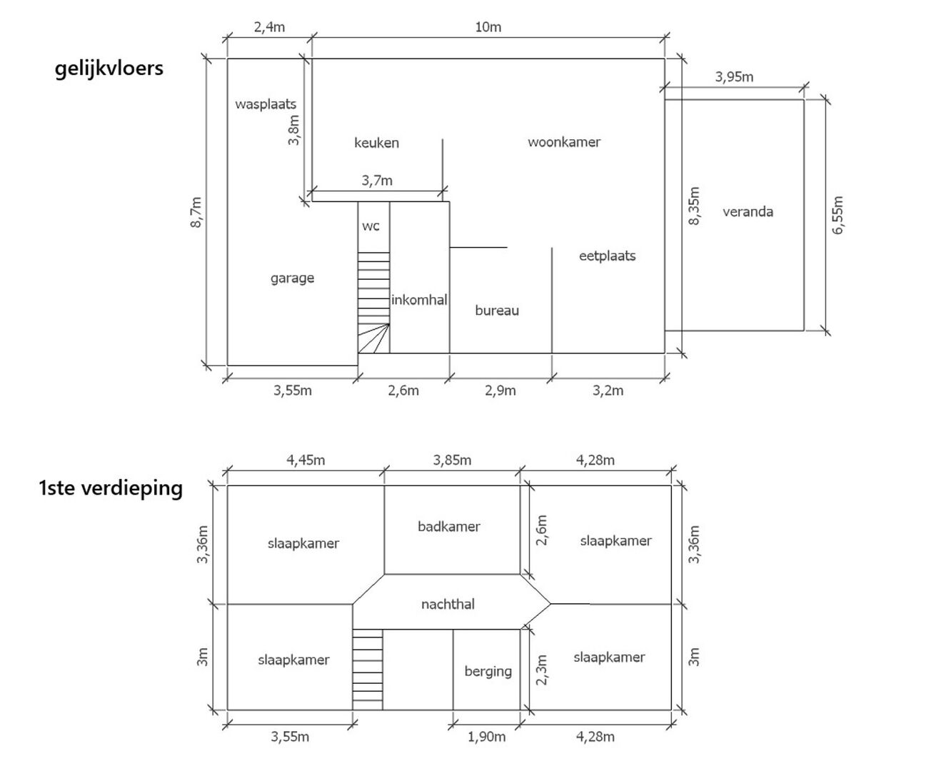
Het gelijkvloers omvat een inkomhal met gastentoilet, een zeer ruime en lichtrijke woonkamer met eetplaats en bureauruimte, volledig ingerichte keuken voorzien van hoogwaardige Siemens-toestellen. Zowel de woonkamer als de keuken bieden toegang tot de aangename leefveranda.
Op de eerste verdieping bevinden zich vier volwaardige slaapkamers en een badkamer uitgerust met douche, bad, dubbele lavabo en toilet. Daarnaast is er nog een praktische berging aanwezig. De zolderverdieping biedt bijkomende opslagmogelijkheden.
Het ruim perceel zorgt voor veel privacy en een open gevoel. Langs de woning ligt een prachtig aangelegde tuin met vijver in de voortuin, waar u in alle rust kunt genieten. De brede oprit, inpandige garage én carport bieden samen uitstekend parkeercomfort.
De woning beschikt over centrale verwarming op aardgas, hoogrendementsbeglazing (met vliegenramen op de slaapkamers), zonnepanelen met thuisbatterij, airconditioning in de veranda, wat resulteert in een gunstig EPC-label A. De elektriciteit is conform.
Ontdek deze woning alvast via de virtuele rondleiding op onze website!
Gelegen in een rustige, doodlopende straat in een residentiële wijk, met het treinstation op korte afstand en het centrum van Herne vlot bereikbaar, combineert deze woning comfort, ruimte en een uitstekende ligging.
Het einde van de straat geeft uit op het prachtige platteland, waar u volop kunt wandelen, fietsen en genieten van de natuur. Een ideale omgeving voor wie rust en ontspanning zoekt. Contacteer ons via nadia@immotijl.be of bel 0486 79 73 19 voor meer informatie of een bezoek.
In detail
Financieel
- prijs
- € 498.000
- beschikbaarheid
- Vanaf akte
- onder btw stelsel
- nee
- kadastraal inkomen
- € 1.646
- opbrengsteigendom
- nee
Ligging
- ligging
- Rustig
- omgeving school
- ja
- omgeving openbaar vervoer
- ja
- omgeving winkels
- ja
Comfort
- air conditioning
- ja
- aansluiting riolering
- ja
- aansluiting gas
- ja
- aansluiting water
- ja
- kabeltelevisie
- ja
Gebouw
- bewoonbare opp.
- 365,00 m²
- constructie
- Open
- bouwjaar
- 2004
Terrein
- perceel opp.
- 1.001,00 m²
- tuin
- 500,00 m²
Energie
- epc
- 84 kWh/m²
- epc unieke code
- 3521861-RES-1
- epc klasse
- A
- dubbel glas
- ja
- elektriciteitskeuring
- ja, conform
- verwarming
- Gas
- zonnepanelen
- ja,
Technieken
- elektriciteit
- ja
- telefoonbekabeling
- ja
Garages / parking
- garages / parking
- 1
- binnenparking
- 1
- buitenparking
- 2
Indeling
- woonkamer
- 50 m²
- keuken
- 14 m², Volledig geïnstalleerd
- veranda
- ja
- slaapkamers
- 4
- slaapkamer 1
- 10 m²
- slaapkamer 2
- 15 m²
- slaapkamer 3
- 14 m²
- slaapkamer 4
- 12 m²
- terras
- ja
Stedenbouwkundige informatie & ruimtelijke ordening
- bestemming
- Woongebied met landelijk karakter
- bouwvergunning
- ja
- verkavelingsvergunning
- ja
- voorkooprecht
- nee
- vonnissen
- nee
- g-score
- A
- p-score
- B
- kadaster sectie
- D
- kadaster nummer
- 48 P
- kadaster opp.
- 1001
- bodemattest
- ja



















