- 4
- 278 m²
- 3.360 m²
- garages
Landelijk gelegen woning met 4 slaapkamers te Lennik!
Deze prachtige, instapklare villa bevindt zich op een ruim perceel van maar liefst 33 are en staat garant voor een oase aan rust. De schitterende, zuid gerichte tuin (onderhoudsvriendelijk aangelegd) biedt luxe en ontspanning tegelijkertijd. Jacuzzi, zwembad, buitensauna en een groot terras - deels overdekt en voorzien van een buitenkeuken met koelkast en barbecue - maken het plaatje compleet.
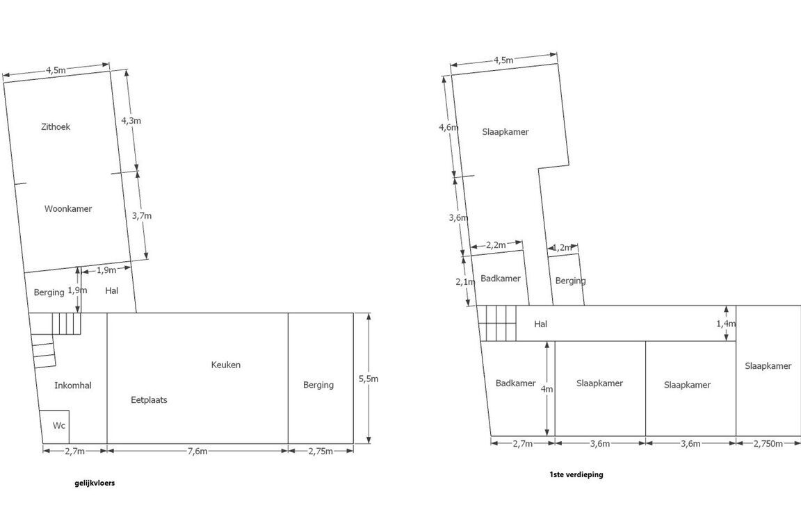
Op het gelijkvloers beschikt deze eigendom over een ruime inkomhal met gastentoilet, een lichtrijke woonkamer met zicht op de tuin en een ruime, volledig ingerichte keuken met eetplaats. Aansluitend is er een praktische berging/wasplaats. De oprit langsheen de woning biedt plaats voor meerdere wagens.
Op de 1ste verdieping vindt men 4 grote slaapkamers waarvan 1 met aansluitend een extra ruimte (ideaal als speelkamer/hobbyruimte of bureau) en 2 badkamers voorzien van alle comfort! Vanuit de achterste slaapkamer kan men genieten van een geweldig, uniek uitzicht op de tuin en landelijke omgeving!
Deze woning biedt alle moderne comfort en is voorzien van een combinatie dubbele beglazing/hoogrendementsbeglazing, centrale verwarming op gas en een elektrische installatie conform AREI. Extra troef is het gunstig EPC-label!
Op zoek naar een stek waar het zalig vertoeven is na een drukke werkdag, in een uitsluitend groene omgeving? Voor meer informatie of een bezoek, neem gerust contact op met Steven via steven@immotijl.be of 0485 52 55 29.
In detail
Financieel
- prijs
- € 895.000
- beschikbaarheid
- Vanaf akte
- onder btw stelsel
- nee
- kadastraal inkomen
- € 922
- opbrengsteigendom
- nee
Ligging
- ligging
- Landelijk
- omgeving school
- ja
- omgeving openbaar vervoer
- ja
- omgeving winkels
- ja
- omgeving autosnelweg
- ja
Comfort
- alarm
- ja
- zwembad
- ja
- aansluiting riolering
- ja
- aansluiting gas
- ja
- aansluiting water
- ja
- kabeltelevisie
- ja
Gebouw
- bewoonbare opp.
- 278,00 m²
- constructie
- Open
- renovatiejaar
- 2013
- oriëntatie achtergevel
- Zuid
Terrein
- perceel opp.
- 3.360,00 m²
- tuin
- 2.610,00 m²
Energie
- epc
- 205 kWh/m²
- epc unieke code
- 0033993604-RES-1
- epc klasse
- C
- dubbel glas
- ja
- elektriciteitskeuring
- ja, conform
- verwarming
- Gas
- type verwarming
- Individueel
Technieken
- elektriciteit
- ja
- telefoonbekabeling
- ja
Garages / parking
- buitenparking
- 2
Indeling
- bureau
- ja
- woonkamer
- 36 m²
- keuken
- 41 m², Volledig geïnstalleerd
- slaapkamers
- 4
- slaapkamer 1
- 15 m²
- slaapkamer 2
- 14 m²
- slaapkamer 3
- 14 m²
- slaapkamer 4
- 20 m²
- terras
- ja
Stedenbouwkundige informatie & ruimtelijke ordening
- bestemming
- Agrarisch gebied
- bouwvergunning
- ja
- verkavelingsvergunning
- nee
- voorkooprecht
- nee
- vonnissen
- nee
- g-score
- C
- p-score
- D
- kadaster sectie
- G
- kadaster nummer
- 14L
- kadaster opp.
- 3360
- bodemattest
- ja

























