- 850 m²
Groot kantoorgebouw met polyvalente ruimtes in Waver!
Dit veelzijdig commercieel gebouw biedt een zee aan ruimte en tal van mogelijkheden. Het pand is gelegen op een gunstige locatie in Waver, met een uitstekende bereikbaarheid.
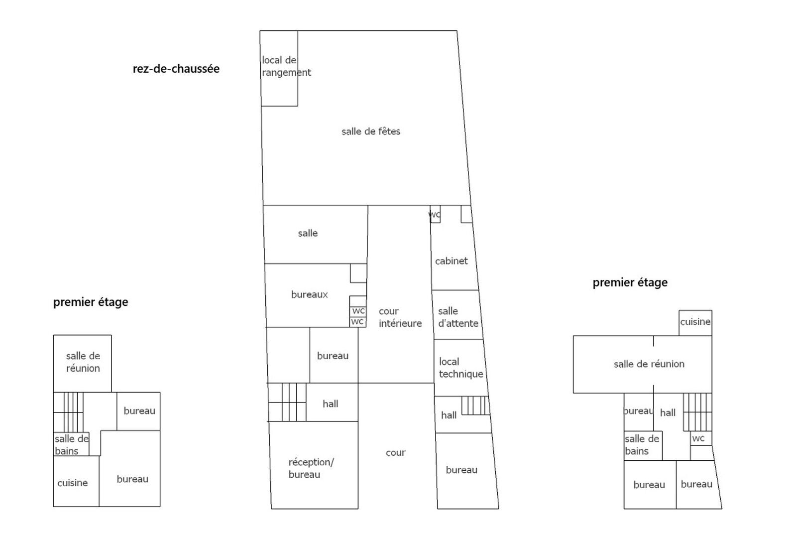
Op het gelijkvloers bevinden zich verschillende bureaus en polyvalente zalen, evenals sanitaire voorzieningen en een praktijk met wachtzaal. Via de binnenkoer heeft u vlotte toegang tot de feestzaal/polyvalente ruimte achteraan het gebouw.
Op de eerste verdieping zijn er meerdere bureauruimtes, vergaderzalen, twee keukens en twee badkamers, en is er directe toegang tot het terras.
Investeringsopportuniteit voor ondernemers, verenigingen die op zoek zijn naar ruimte en potentieel of projectontwikkelaars!
De opgegeven afmetingen zijn louter indicatief en geven derhalve slechts een geschatte oppervlakte weer. Voor meer info en/of een bezoek, contacteer ons via steven@immotijl.be of 0485 52 55 29.
In detail
Financieel
- prijs
- € 790.000
- beschikbaarheid
- Af te spreken met eigenaar
- onder btw stelsel
- nee
- kadastraal inkomen
- € 6.355
- opbrengsteigendom
- nee
Ligging
- ligging
- Centraal
- omgeving school
- ja
- omgeving openbaar vervoer
- ja
- omgeving winkels
- ja
- omgeving autosnelweg
- ja
Comfort
- aansluiting riolering
- ja
- aansluiting gas
- ja
- aansluiting water
- ja
Gebouw
- bewoonbare opp.
- 850,00 m²
- constructie
- Gesloten
Energie
- dubbel glas
- ja
- verwarming
- Gas
Technieken
- elektriciteit
- ja
- telefoonbekabeling
- ja
Indeling
- bureau
- ja
- keuken
- ja
Stedenbouwkundige informatie & ruimtelijke ordening
- bestemming
- Woongebied
- bouwvergunning
- ja
- verkavelingsvergunning
- nee
- voorkooprecht
- nee
- vonnissen
- nee
- overstromingsgevoeliggebied
- Mogelijk overstromingsgevoelig gebied
- kadaster sectie
- G
- kadaster nummer
- 159B
- kadaster opp.
- 700




















